2022
Vilnius, Lietuva
32.20 m2
Pradinis projekto tikslas buvo gana paprastas. Sukurti stilinga šiuolaikišką rezidenciją su stipriais emociniais elementais kurie puoselėtų buto gyventojus. Pagrindiniai projekto principai buvo skirti daug dėmesio reikšmingiems daiktams ir patirtims kur eilinės buitinės rutinos būtų užmaskuoti neaukojant jų patogumo ar praktiškumo.
Pradinė mintis projekto medžiagiškumui gimė įsivaizduojant “dykumos uola”. Rami ir saugi, pilna įvairių tekstūrų ir natūralių formų aplinka. Ši koncepcija buvo toliau pagrįsta pagrindinių medžiagų parinkimu. Tamsi sodri mediena ir dekoratyvus tinkas padėjo sukurti atpalaiduojančia ir jausmingą spalvų paletę. Tekstilės buvo parinktos šiltesnių atspalvių su turtingą tekstūra, kad priduoti erdvei komforto jausmą. Liejamos grindys buvo parinktos, kad išlaikyti lengvumo pojūtį siekiant kompensuoti neuždengtų betono lubų. Dauguma medžiagų buvo apgalvotai parinktos dėl jų natūralios išvaizdos, dauguma tekstilės buvo renkamos siekiant imituoti natūralią drobę. Apatinės virtuvės spintelės buvo dekoruotos nerūdijančio plieno fasadais.
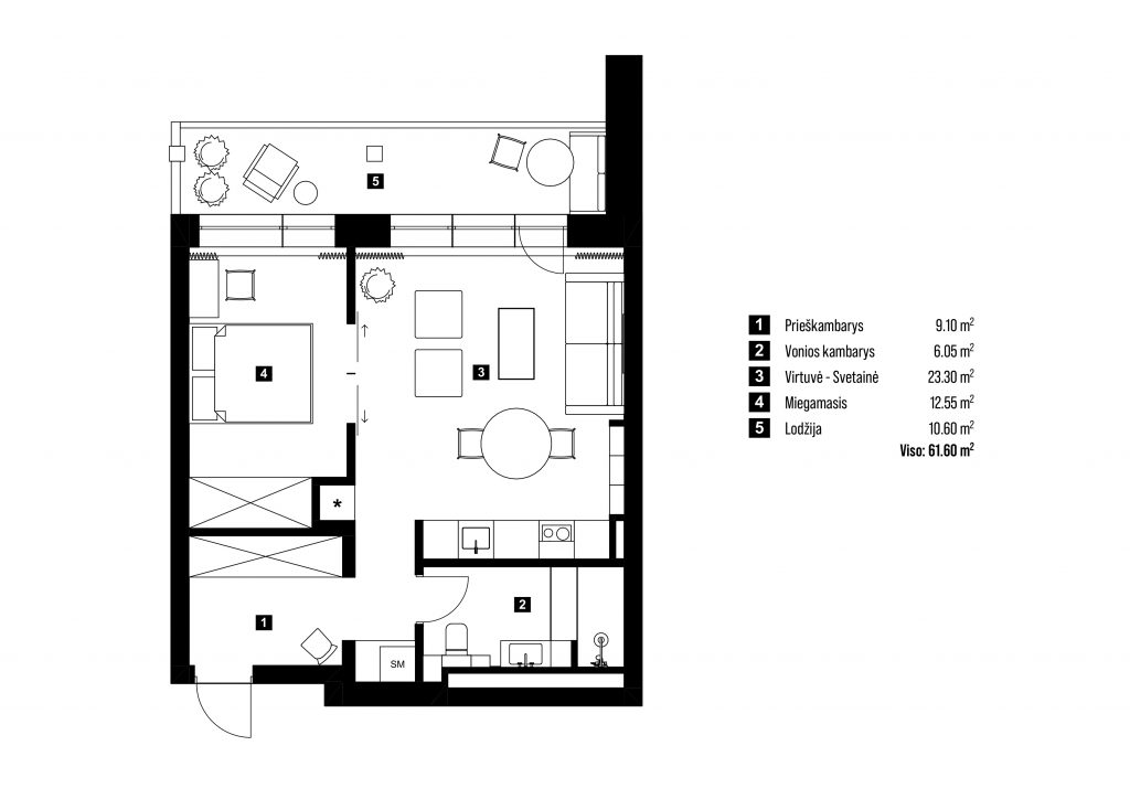
Virtuvė buvo suprojektuota tokių būdu, kad tradiciškai viršuje esančios pakabinamos spintelės buvo sugalvotos kaip aukštą ir talpi ūkinė spinta kuri buvo perkelta į virtuvės šoną. Tokių būdų pati virtuvė įgauna ženkliai lengvesnė ir kompaktišką išvaizdą neprarandant jokių praktiškumo reikalavimų ir užtikrina patogų ir laisvą darbastalio panaudojimą. Tikslas buvo sukurti virtuvė kuri yra daugiau panaši į šiuolaikišką baro zoną.
Šalia virtuvės esantys pietų stalas buvo parinkti toliau siekiant neužkrauti erdvės ir užtikrinti patogų judėjimą aplink jų. Papildomos kėdės yra išskaidytos per butą ir gali būti naudojami kaip papildomas atsisėdimas jeigu atsiranda toks poreikis. Svetainėje trivietė sofa ir du dideli stačiakampiai pufai suteikia daug galimybių patogiai įsitaisyti. Marmurinis žurnalinis staliukas taip pat gali būti naudojamas atsisėdimui.
Užsakovas nusprendė atsisakyti televizorių ar kitos stambios pramogų technikos. Tas leido instaliuoti dvigubą stumdomų durų sistemą. Durys buvo suprojektuotos su paslėptais bėgeliais siekiant suteikti jiems tvirtą ir šiuolaikišką išvaizdą. Stambios durys kai yra naudojamos suteikia butui prabangos ir pasitenkinimo jausmą. Atviros durys padeda išlaikyti buto erdvumą ir suteikia dramatišką virš lovos kabančio dekoratyvinio šviestuvo vaizdą. Šviestuvas buvo specialiai parinktas norint suteikti butui džiaugsmo ir humoro jausmo. Šalia lovos yra nedidelis rašomasis stalas kuris gali būti naudojamas kaip darbo zona.
Miegamojo spinta buvo specialiai suprojektuota siekiant akcentuoti kliento kruopščiai atrinktą drabužių kolekciją. Stiklinės durys su specialiai sukurtu raštu padeda išlaikyti tvarkos išvaizdą tačiau vis tiek leidžia žvilgtelėti į vidų.
Šalia vonios kambario esanti niša leido įrengti (neaukojant prieškambario spintos) ūkinę spintą kur būtų sandėliuojamos dauguma namų apyvokos reikmenų. Spintoje taip buvo įrengtos skalbimo ir džiovinimo mašinas. Tai suteikė galimybė įsirengti žavingą ir erdvų vonios kambarį kur šeimininkų dėmesys būtų skirtas kasdieniniams priežiūros ritualams užtikrinant maloni ir rami dienos pradžią ir pabaigą.



















